Aragon Aluminio

Muro Cortina S-45

Sistema diseñado para luces verticales moderadas, con cavidad interna para refuerzo estructural y mejor respuesta a cargas.

Características

    • Sistema de Muro Cortina con perfilería a la vista, con opción Piel de Vidrio con silicona Estructural.

 

    • ​​Ancho 45 mm. adecuado para el mercado colombiano.​

 

    • Cavidades para empaque de uso local.​

 

    • Fácil ensamble e instalación.​
  • Vertical principal diseñado para luces moderadas y cavidad interna para refuerzo y mejora de cargas.​

  • Cavidad para vidrio de 6, 8 , 10 y 12 mm., con perfil inserto para ampliar cavidad y utilizar vidrio insulado de 6+6 y 8+8 con espaciador de ½”.
Vidrio Doble
Vidrio Sencillo

Componentes del Sistema

Nueva Opción Reforzada

Perfil vertical de alto desempeño estructural

Perfil reforzado y de mayor tamaño que incrementa la inercia y la resistencia:

 

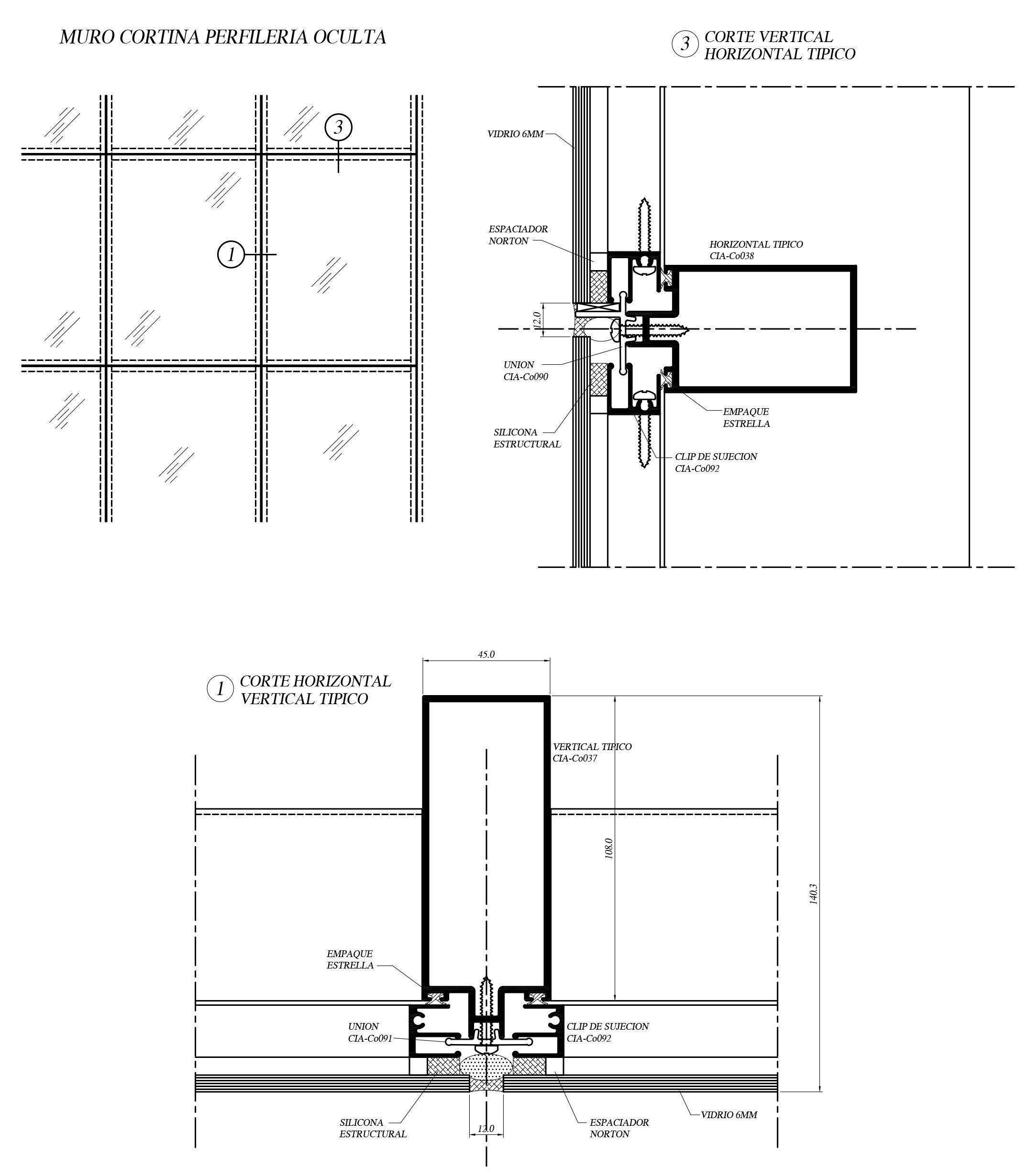
Sistema Silicona Estructural​

Variación del sistema original pero con perfilería oculta.

Fijación de los cristales a una estructura de aluminio mediante silicona estructural dando al proyecto una apariencia mas contemporánea en “piel de vidrio”.

Obtén tu Licencia de OP 2.1 Gratuita por 4 Meses

En colaboración con Aragon Aluminios, Megevand Soft te ofrece la oportunidad exclusiva de acceder a una licencia completa y gratuita durante 4 meses. INTENTALO AHORA